青島花園設計-驪山國際別墅花園景觀設計
項目名稱:55㎡簡約美式花園也可以這么美!
項目類別:別墅花園類
項目面積:55㎡
項目造價:*萬
項目所在城市:山東青島
主案設計師:董侃侃
設計單位:青島美匯蘭亭庭院景觀工程有限公司
施工單位:青島美匯蘭亭庭院景觀工程有限公司
設計說明:項目花園位于青島市即墨區,男主人在探訪考察過蘭亭正在進行中的設計作品現場后,決定將自己的花園委托給蘭亭團隊來設計和建造。花園主人是一對且對花園有自己獨特見解的夫妻,他們希望花園在具有功能和實用性的同時,還要具有新穎性和獨特性。
在溝通和勘測完現場后,我們了解了建筑風格,空間關系,以及周邊環境的優弊。
存在問題:1.地處北院,冬季西北風較大,考慮抗風性強的植物;
2. 東、西、北圍墻高且立面過于單調,缺少趣味性;3.西側鄰居廊架高出圍墻部分,影響院子整體性及美觀性。

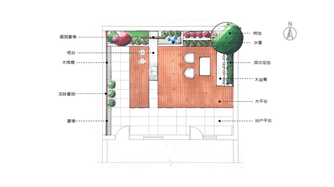
整個花園空間功能相互咬合銜接,既是過道入戶空間,活動空間又是花園休閑空間。風格上延續建筑風格,并在設計材質中融入美式元素,以簡約的大線條與鑲嵌體塊做設計布局,結合燈光的設計布置,給花園主人良好的花園體驗和時尚的視覺感官。

花園的休閑空間是一大亮點,寒武石柱水景、層次花池、木質坐凳,沙發休閑區完美結合。材質上耐候鋼板的銹蝕形態和三岳流水小品(寓意細水長流,源源不斷)的自然形態形成呼應,美式風格自然流露。相信,經過時間的沉淀,小品呈現出的色彩和質感,給花園增添獨特的藝術魅力。



視線的盡頭是木質與石材結合的景觀墻,置一成品洗手缽,通過顏色與之呼應,相得益彰,
體現濃濃的美式風格。一面花墻,淡淡的灰藍色木質基調,白色的網狀格柵顯得格外耀眼,薔薇歐月們正在鉚足勁兒的攀爬著…..
在廚房對景的視線區域,以“圓”為概念,既是緣分的開始,也是源源不斷地延續,圓洞墻與吧臺結合,讓此處具有很好的實用性,同時又成為廚房的景觀,吧臺材質延續至北墻立面,讓空間層次得到豐富,視覺空間感得到放大。
休閑區背景墻采用與西墻同樣材質石材,蘑菇頭戶外調光壁燈錯落有致的安置,單調的墻面瞬間趣味十足。南天竹,杜鵑,鳶尾… …不同質感的植物組合一起,使得花園更加富有生機與活力。
設計感悟:
花園的構成元素正好體現了業主對生活方式的需求,小花園,大魅力,一個故事,一種生活
讓生活之美在花園里盡情綻放。
